Aller à :

  • Aller à la recherche
  • Aller au menu principal
  • Aller au contenu
0
  • Accueil
  • Nos ventes
    • Maisons
    • Appartements
    • Locaux professionnels
    • Immeubles de rapport
    • Terrains
  • NOS LOCATIONS
    • Maisons
    • Appartements
    • Locaux professionnels
  • Programmes neuf
  • Notre agence
  • Estimation
  • Nous contacter
  • Aménagement 3D
  • Achat de bien

N'attendez plus pour vendre votre bien

Faites une estimation rapide
0
VotreRecherche
Dans un rayon de
Budget
entre et €
Min €
Max €
  1. Agence immobilière à Mulhouse
  2. Lots
  3. Haut rhin
  4. Mulhouse
  5. Appartement
  6. T3
  7. Brunstatt 3 pieces avec jardin
Coup de coeur
Réf : Brunstatt 3p avec jardin
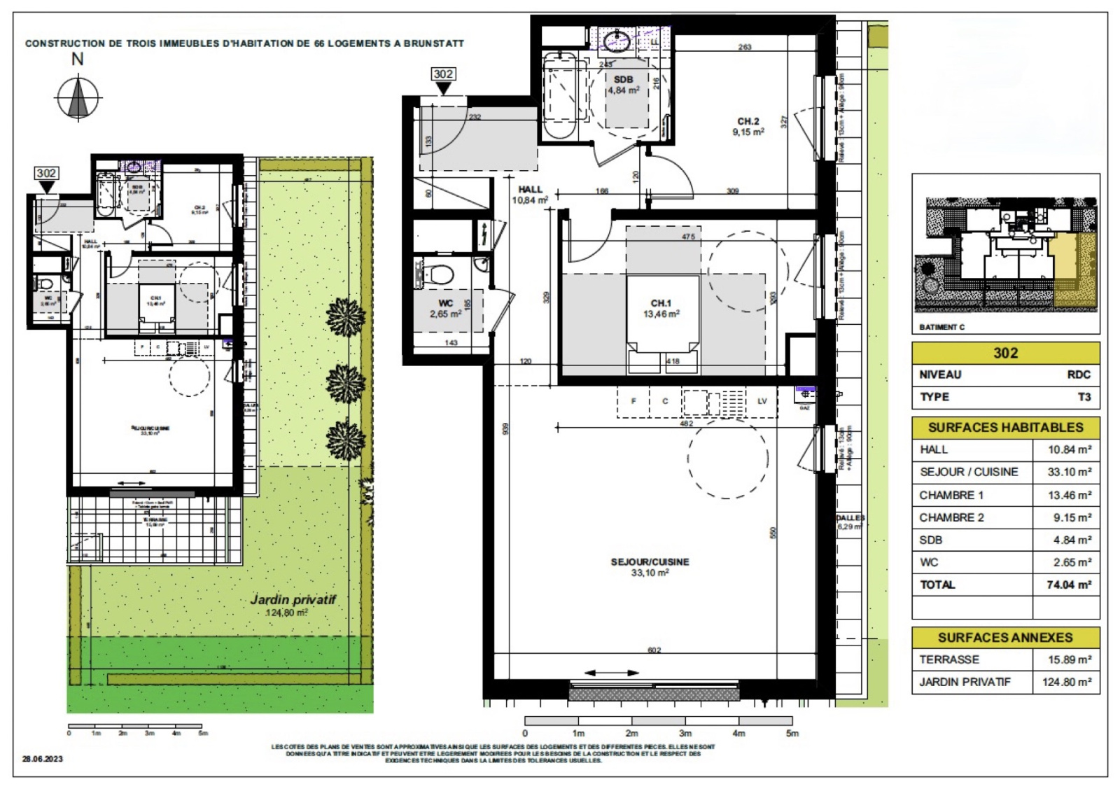
Appartement 74 m²
Nombre de pièces 3
Nombre de chambres 2
Nombre de salles de bain 1
293 000 €

Brunstatt 3 pièces avec jardin Mulhouse (68100)

A proximité immédiate du zoo de Mulhouse et de l'hôpital Emile Muller sur les collines du Moechsberg et les hauteurs de Brunstatt, magnifique 3 pièces 74m² en rez de jardin, avec une terrasse de 15m² orientée plein sud et un jardin privatif de 1,24 are. Vous apprécierez avant tout l'emplacement exceptionnel de la résidence: au calme, avec une vue imprenable sur les champs. A deux pas des lieux de promenade, à 10 mn de la gare et des commerces de l'avenue d'Altkirch. Arrêt de bus à 5/6 mn à pied.

Le séjour et la cuisne représentent un espace de vie de 33m2 et donnent accès à la terrasse couverte et au jardin, les chambres à coucher sont à l'est (13 et 10m2), la salle de bain est équipée, wc séparé, placard de rangement.

Visite rapide sur rdv, disponibilité immédiate. Un autre 2p est encore disponible dans cette résidence. Sinon, d'autres lots seront livrables en 2027, les travaux de la 2ème tranche ayant démarrés.

Possibilité garage, cave, parking extérieur.

Lot 302

Le bien en vidéo
SpotVideo
  • Général
  • Détails +
  • Financier
  • DPE
  • Copropriété
Caractérisque Valeurs
Code postal 68100
Surface habitable (m²) 74 m²
Surface loi Carrez (m²) 74 m²
Nombre de chambre(s) 2
Nombre de pièces 3
Nombre de niveaux 1
Ascenseur OUI
Vue Sur les champs
Caractérisque Valeurs
Nb de salle de bains 1
Cuisine Américaine
Mode de chauffage Gaz de ville
Type de chauffage Au sol
Format de chauffage Individuel
Terrasse OUI
Exposition Sud-Est
Année de construction 2023
Quartier REBBERG
Caractérisque Valeurs
Prix de vente honoraires TTC inclus 293 000 €
DPE GES
Caractérisque Valeurs
Copropriété OUI
Quote Part annuelle des charges 1 200 €
Cette offre
vous intéresse
Contacter l'agence
06 12 70 26 89

* champs obligatoires

Les informations recueillies sur ce formulaire sont enregistrées dans un fichier informatisé par La Boite Immo agissant comme Sous-traitant du traitement pour la gestion de la clientèle/prospects de l'Agence / du Réseau qui reste Responsable du Traitement de vos Données personnelles. La base légale du traitement repose sur l'intérêt légitime de l'Agence / du Réseau. Elles sont conservées jusqu'à demande de suppression et sont destinées à l'Agence / au Réseau. Conformément à la loi « informatique et libertés », vous disposez des droits d’accès, de rectification, d’effacement, d’opposition, de limitation et de portabilité de vos données. Vous pouvez retirer votre consentement à tout moment en contactant directement l’Agence / Le Réseau. Consultez le site https://cnil.fr/fr pour plus d’informations sur vos droits. Si vous estimez, après avoir contacté l'Agence / le Réseau, que vos droits « Informatique et Libertés » ne sont pas respectés, vous pouvez adresser une réclamation à la CNIL. Nous vous informons de l’existence de la liste d'opposition au démarchage téléphonique « Bloctel », sur laquelle vous pouvez vous inscrire ici : https://www.bloctel.gouv.fr Dans le cadre de la protection des Données personnelles, nous vous invitons à ne pas inscrire de Données sensibles dans le champ de saisie libre.
Ce site est protégé par reCAPTCHA, les Politiques de Confidentialité et les Conditions d'Utilisation de Google s'appliquent.

Partager le bien
Nos outils
Imprimer Imprimer
Calculatrice financière

* Champ obligatoire

Partager l'annonce

* champs obligatoires

Les informations recueillies sur ce formulaire sont enregistrées dans un fichier informatisé par La Boite Immo agissant comme Sous-traitant du traitement pour la gestion de la clientèle/prospects de l'Agence / du Réseau qui reste Responsable du Traitement de vos Données personnelles. La base légale du traitement repose sur l'intérêt légitime de l'Agence / du Réseau. Elles sont conservées jusqu'à demande de suppression et sont destinées à l'Agence / au Réseau. Conformément à la loi « informatique et libertés », vous disposez des droits d’accès, de rectification, d’effacement, d’opposition, de limitation et de portabilité de vos données. Vous pouvez retirer votre consentement à tout moment en contactant directement l’Agence / Le Réseau. Consultez le site https://cnil.fr/fr pour plus d’informations sur vos droits. Si vous estimez, après avoir contacté l'Agence / le Réseau, que vos droits « Informatique et Libertés » ne sont pas respectés, vous pouvez adresser une réclamation à la CNIL. Nous vous informons de l’existence de la liste d'opposition au démarchage téléphonique « Bloctel », sur laquelle vous pouvez vous inscrire ici : https://www.bloctel.gouv.fr Dans le cadre de la protection des Données personnelles, nous vous invitons à ne pas inscrire de Données sensibles dans le champ de saisie libre.
Ce site est protégé par reCAPTCHA, les Politiques de Confidentialité et les Conditions d'Utilisation de Google s'appliquent.

Partager avec vos proches

Facebook Facebook
Messenger Messenger
Twitter Twitter
WhatsApp WhatsApp
LinkedIn LinkedIn
Copier le lien Copier le lien
Détail des diagnostics énergétiques
DPE GES
DPE ANCIENNE VERSION
Autres biens

Ces biens peuvent aussi vous intéresser

Appartement

3 p rebberg terrasse

Mulhouse (68100)
Coup de coeur
Voir le bien
Appartement

3 pieces Brunstatt

Mulhouse (68100)
Voir le bien
Se connecter
Espace propriétaire
Page d'accueil
Adhérents

© 2026 | Tous droits réservés | Traduction powered by Google |

  • Nos honoraires
  • Plan du site
  • Mentions légales
  • Admin
  • Nos liens
  • Politique RGPD
  • LinkedIn

Comme beaucoup, notre site utilise les cookies

On aimerait vous accompagner pendant votre visite. En poursuivant, vous acceptez l'utilisation des cookies par ce site, afin de vous proposer des contenus adaptés et réaliser des statistiques !

Paramétrer

Cookies fonctionnelsCes cookies sont indispensables à la navigation sur le site, pour vous garantir un fonctionnement optimal. Ils ne peuvent donc pas être désactivés.

Statistiques de visitesPour améliorer votre expérience, on a besoin de savoir ce qui vous intéresse !
Les données récoltées sont anonymisées.

?

Google Analytics

En savoir plus